Nos preocupa tu privacidad En pisos.com utilizamos cookies propias y de terceros para dar un servicio satisfactorio mediante cookies técnicas, de personalización y para fines analíticos. pulsa AQUÍ para más información. Puedes aceptar todas las cookis pulsando el botón "aceptar" o configurarlas o rechazar su uso pulsando
Aceptar Rechazar todas Configurar
Piso en venta en La Salut
  • 2HabitacionesHabs
  • 1Baños
  • 2planta
  • 88 m2
459.000 €

Piso en venta en La Salut

La Salut (Gràcia. Barcelona Capital)

REF.: IB00282 459.000 €
Contactar ahora
Contactar ahora 933 467 211
call
Llamar
email
Contactar
call
Llamar
email
Contactar
Detalles del inmueble
  • Precio 459.000 €
  • Referencia IB00282
  • Dirección Calle Dalt
  • Zona La Salut
  • Aceptan mascota Si
  • Calefacción Si
  • Ascensor Si
  • Habitaciones 2
  • Baños 1
  • Planta 2
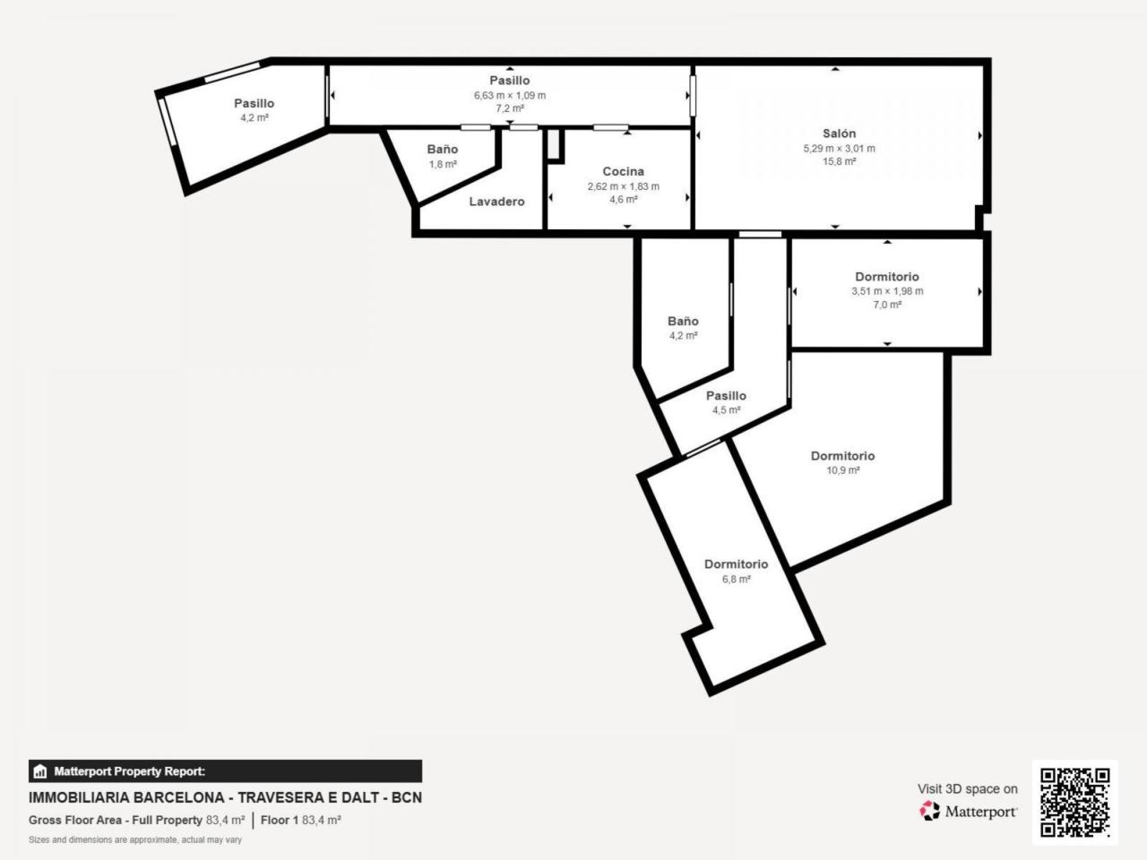
  • Superficie total 88 m2
  • Superficie útil 71 m2
  • Certificación energética
    Clasificación Disponible
    Emisiones 37 Kg CO2/m2 año
    Ver etiqueta energética
    79
    37
  • Descripción Ubicado en el corazón del barrio de La Salut, en Gràcia, este piso exterior es una oportunidad única para quienes buscan una vivienda con personalidad, bien ubicada y con potencial de revalorización. La propiedad ofrece una distribución funcional que permite adaptarla fácilmente a los gustos y necesidades actuales. Dispone de tres habitaciones (una doble y dos individuales), un baño completo y un aseo adicional, lo cual es muy práctico tanto para el día a día como para visitas. La cocina es independiente, y cuenta con buena ventilación y espacio para renovarla al gusto. Además, la vivienda dispone de una galería separada, ideal como zona de lavandería o espacio de almacenaje, lo que añade funcionalidad sin restar metros al interior. El salón-comedor es amplio y muy luminoso gracias a su orientación y al hecho de que el piso es completamente exterior. Aquí podrás imaginar un espacio de descanso y reunión, con múltiples posibilidades de reforma que te permitirán crear un hogar moderno y acogedor. El edificio, construido con criterio y bien conservado, ofrece dos ascensores, un servicio de portería que aporta tranquilidad y seguridad, y unos gastos de comunidad asequibles, lo cual representa un importante ahorro a medio y largo plazo. Este piso es ideal para una pareja joven o una familia que ya vive en la zona y quiere dar el salto a una vivienda más grande, con la intención de reformarla a su gusto y crear su hogar definitivo. También es una gran opción para inversores que buscan una propiedad con alta demanda en una de las zonas más deseadas de Barcelona.
Fincas San Andres

FINCAS SAN ANDRES S.L

Dirección

Calle Dalt
La Salut

Teléfono

933 467 211

Fax

932740197

Email

comercial@fincas-sanandres.com

Formulario de contacto

Enviar

Calcular